Share

1280-1290 Straight Path

1280-1290 Straight Path

Project Details:
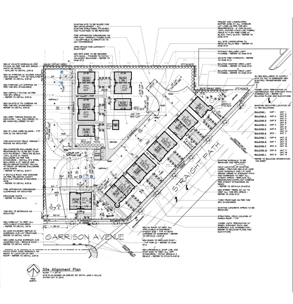
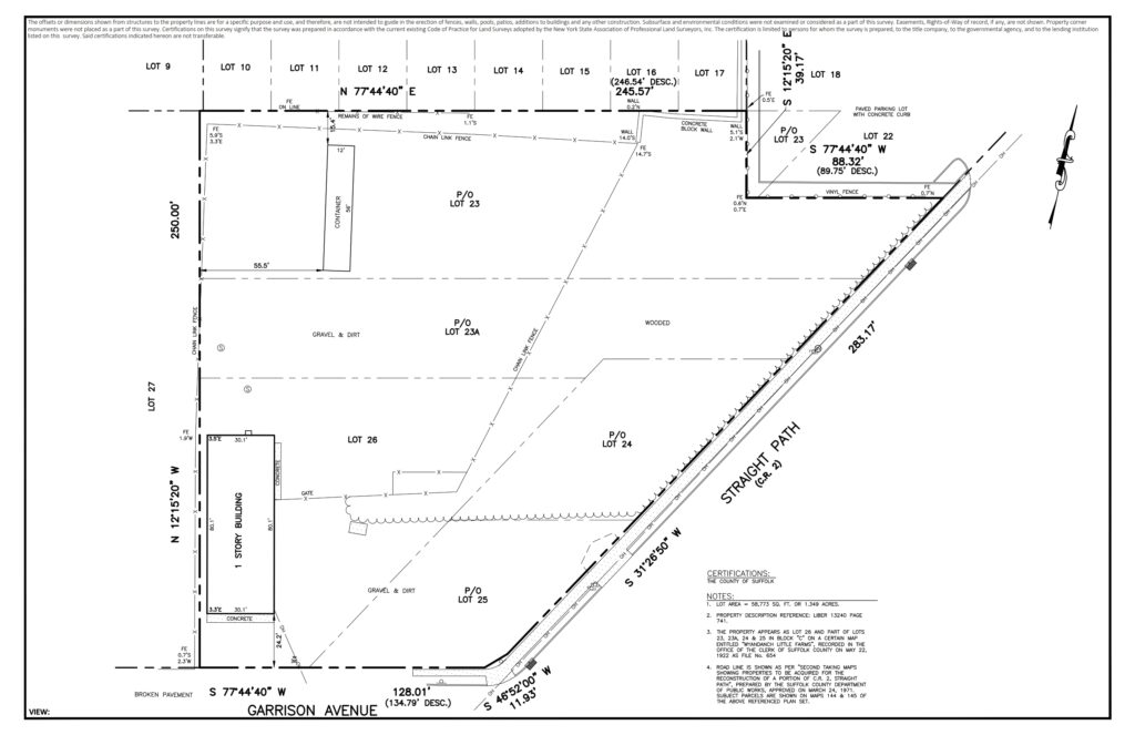
Location: 1280-1290 Straight Path, Wyandanch, NY
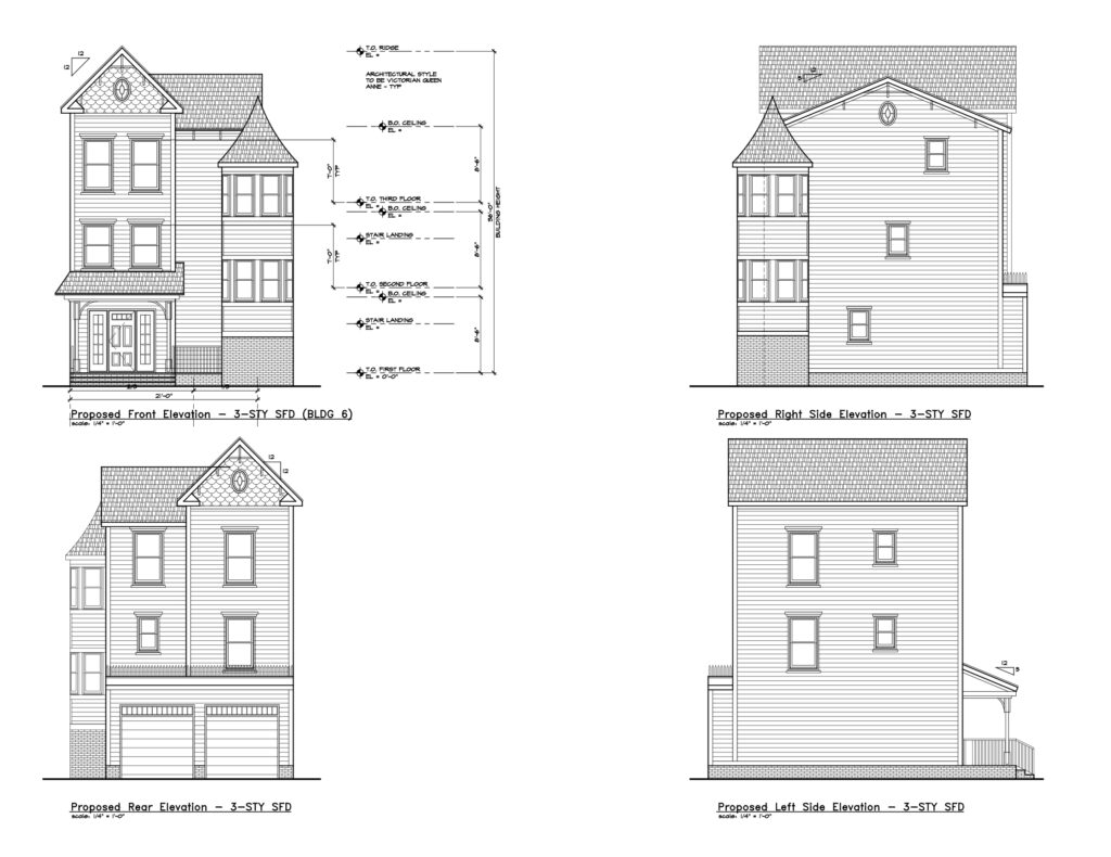
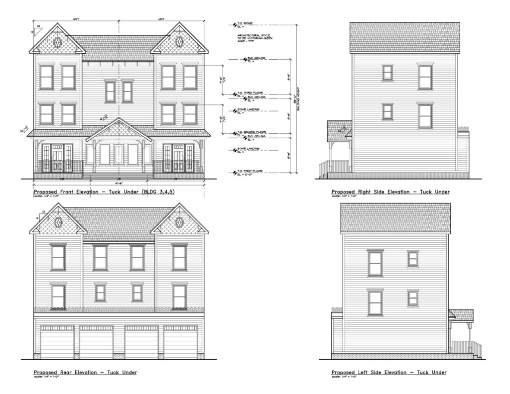
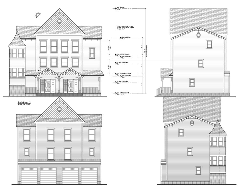
Building Type: New Multi-Family Duplex Complex
Status - Under Planning with the Town of Babylon

Project Description – 1280-1290 St Path, Wyandanch NY 11798

Project Overview:
Project Name: New Multi-Family Duplex Complex
Address: 1280 - 1290 Straight Path, Wyandanch, NY 11798

Project Type:
Multi-Family Residential
Total Dwelling Units:19 Units
Total Lot Area: 59,316 sq. ft.

Jurisdiction & Approvals:
The project falls under the jurisdiction of the Town of Babylon, Suffolk County, New York, and is 
subject to all local zoning and building regulations.

Project Scope:
The development aims to provide modern, high-quality residential units, 
contributing to the growing housing needs of the area. 
Designed to meet local building codes and energy efficiency standards, 
this multi-family complex will offer spacious living spaces and contemporary amenities to future residents.

This project aligns with the urban development goals of Wyandanch, fostering growth while 
ensuring compliance with all regulatory requirements. regulations.