Share

166-16 88th Ave

166-16 88th Ave

Property Details:
166-16 88th Ave, Jamaica Queens NY 11432

Proposed Plan:
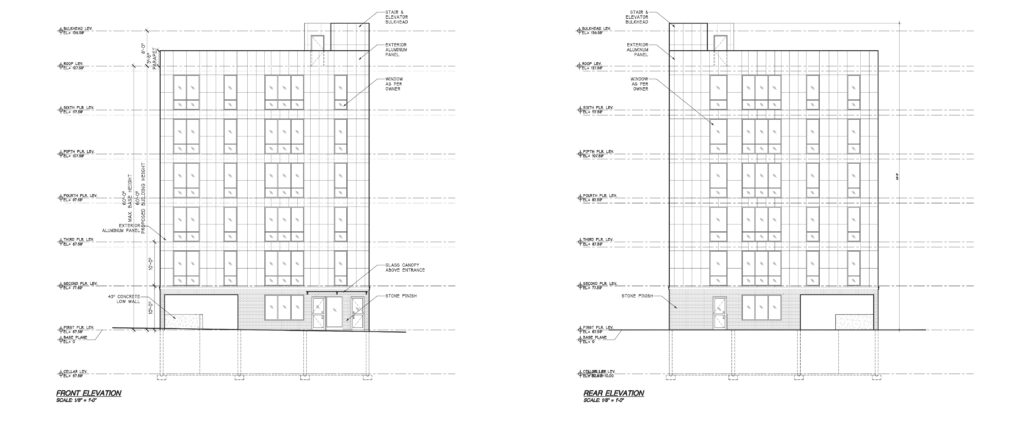
To build a 6-story Multi-family Building with 20 Units.

Project Description – 166-16 88th Ave, Queens, NY 11432
The 166-16 88th Ave Project is a 6-story multifamily residential building currently 
under DOB NYC approval in Queens, NY 11432. 
Designed to meet NYC Building Code, DOB regulations, and energy efficiency standards, 
the project will provide modern living spaces and a dedicated community facility.

Project Overview:
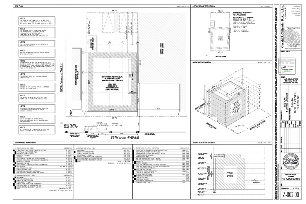
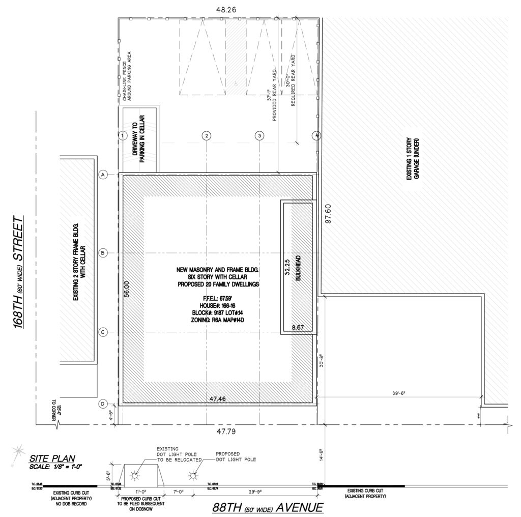
Location: 166-16 88th Ave, Queens, NY 11432
Building Type: 6-story multifamily residential building
Total Dwelling Units: 20
Total Lot Area: 4,639 sq. ft.
Total Built-Up Area: 16,378 sq. ft.
Construction Type: Concrete Construction
Construction Status: Under DOB NYC approval
Expected Completion: December 2025

Features: Spacious apartments, modern amenities, and a community facility for residents
This project aims to enhance the Queens residential landscape by delivering high-quality housing 
and community resources, while ensuring full compliance with NYC zoning and safety regulations.